Breadcrumb
XPK114 Foster Campus Connectivity Project
Project Vitals
- Planned Construction Duration: 8 months
- Project Budget: TBD
- Funding Source: TBD
- Humboldt Project Manager: Scott Harris
- Project Architect: Howard Maxwell
- Project Engineer: SHN Consulting Engineers & Geologists
- Project Contractor: TBD
- Construction Project Manager: Cal Poly Humboldt
Project Details
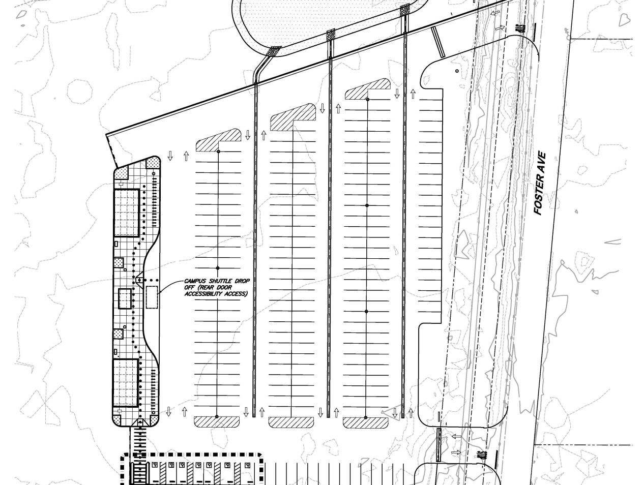
Cal Poly Humboldt proposes to develop and operate a parking lot and shuttle station at 2000 Foster Avenue, Assessor’s Parcel Number 505-161-011. The project would be developed in a single phase and would result in paving of the project site to support long-term student parking, improved access to the project site, provision of shuttle stops within the parking lot and at the intersection of 17th and Q Street, landscaping, lighting, and bioretention facilities to support on-site stormwater management. In addition, the project involves modification of the Humboldt State University 2004 Master Plan (Campus Master Plan) to remove the approved Parking Structure P from the main campus and include the project site as part of the Campus Master Plan.
CEQA Updates:
The Initial Study/proposed Mitigated Negative Declaration (IS/proposed MND) was originally published August 8, 2025. It has been recirculated, and is available for a 30-day public review and comment period from March 3, 2026 to April 2, 2026. Comments can be submitted to ceqa@humboldt.edu. Links are below:
March 3, 2026 publishing (recirculated):
Initial Study and Mitigated Negative Declaration (March 2026)
August 8, 2025 publishing (original):
Initial Study and Mitigated Negative Declaration (August 2025; SCH# 2025080375)
Appendix A - Transportation Analysis
Appendix B - Air Quality, Greenhouse Gas Emissions, Energy Modeling Calculations




